COMMON


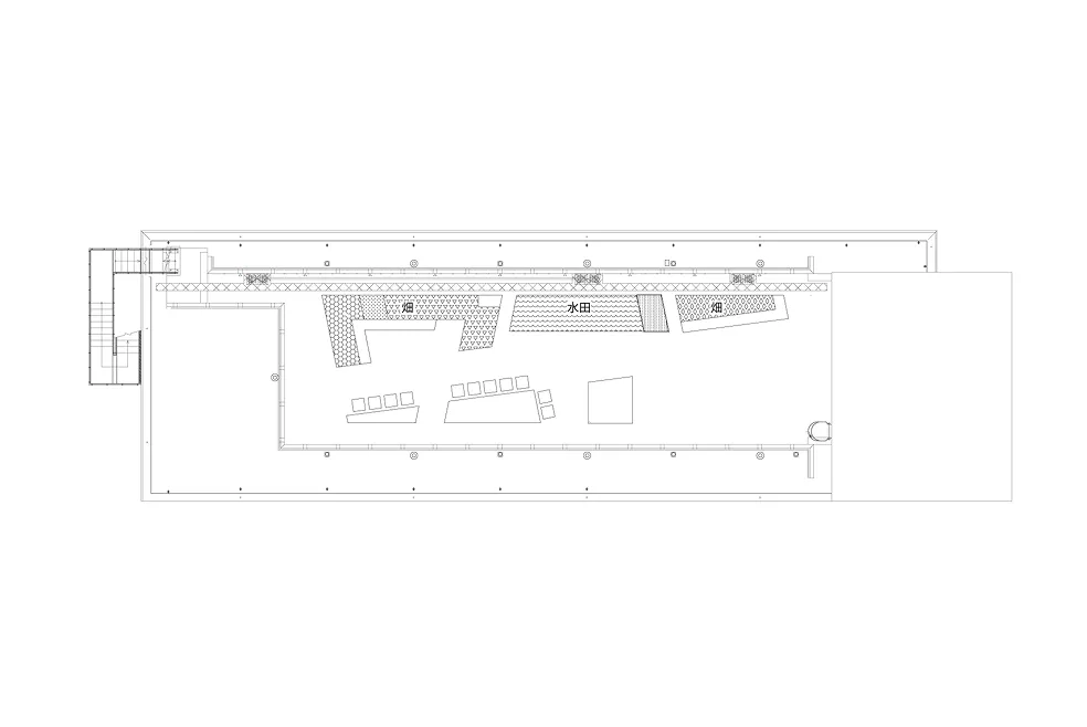
広い海と開放的な空を感じる屋上には、レインボーブリッジを望むシェア型農園を設置。住みながら農作物を育てる体験や料理教室などを通じて、健康に対する意識や入居者同士の交流を育みます。


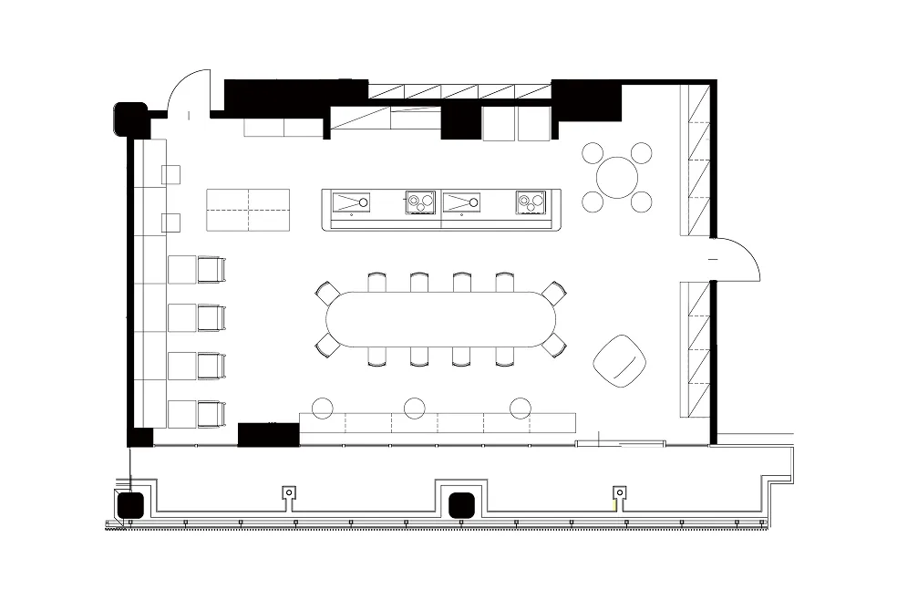
思わず早起きして試したくなるきっかけがつまったダイニングラウンジ。一人暮らしでは持たないような様々な家電を試すことができ、プロにより選書された本棚まで、朝型の暮らしをはじめることで仕事も暮らしも実りある暮らしを送ることができます。